Questo è il nuovo metodo per vendere appartamenti da ristrutturare?!
Una nota agenzia immobiliare di Milano, aveva l’esigenza di riprogettare completamente una appartamento di lusso in centro a Milano in vendita.
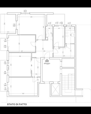
L’appartamento, causa della classica distribuzione degli spazi interni anni ’30, non era molto appetibile.


Il nostro compito è stato quello di far comprendere appieno le immense potenzialità dell’immobile; nonché dare una stima approssimativa dei costi per ristrutturarlo.
Dopo un attenta analisi riferita agli spazi, all’orientamento dell’immobile, alla posizione di scarichi vi alleghiamo la nostra soluzione, volta a migliorare la gestione degli spazi e la distribuzione interna.
in 10 gg l’appartamento è stato venduto!



